多边形帐篷
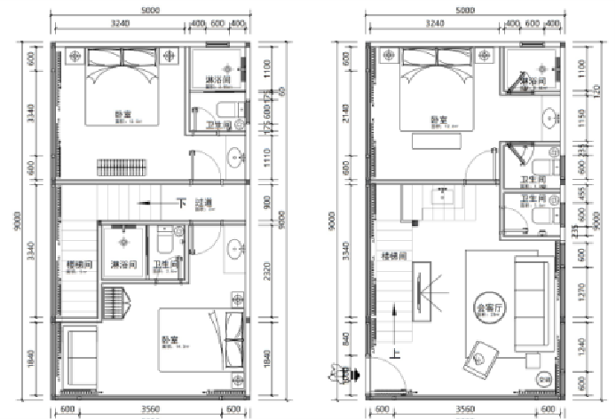
主材:氟碳漆防锈碳钢钢管 外膜:PVDF优质膜材 内膜:PVC 墙体:保温硬体墙+中空玻璃墙体 主体尺寸:5mx9mx2层 室内尺寸:4.88mx8.88m 外部高度:8.7m 内部高度:5.7m 室内面积:42.24㎡x2层(共计84.48㎡) 抗风等级:10级以下
产品咨询